Feedback
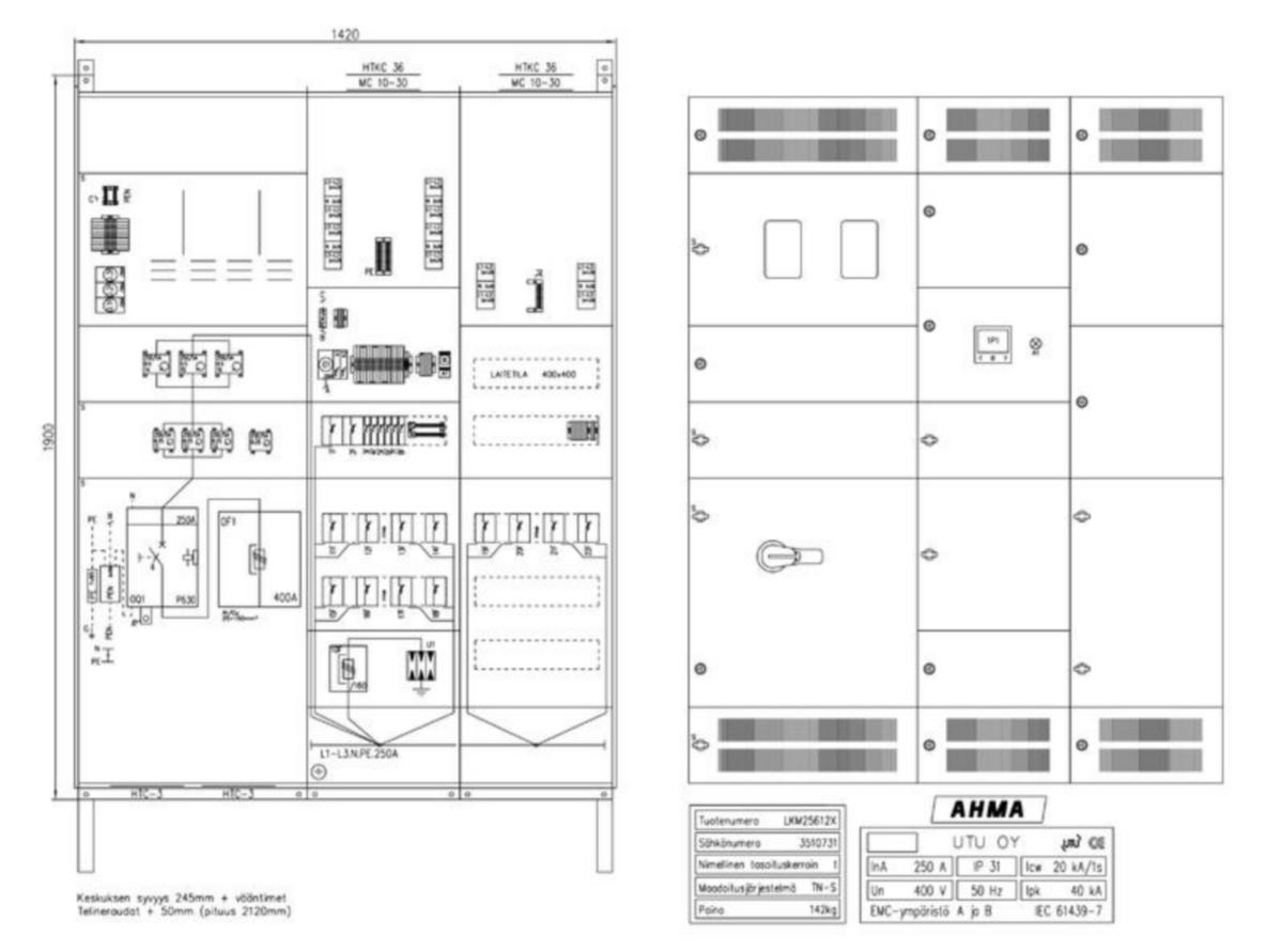
Latauskeskukset ovat seinälle asennettavia sähkökeskuksia, joissa on huomioitu latauskeskusstandardin tarpeet ja vaatimukset. Lämpenemän hallinta on sähköauton latauksessa erityisen tärkeää, joten UTUn latauskeskuksissa on aina komponenttikohtaiset tuuletusvälit ja kenttäkohtainen tuuletus. Kotelointiluokka on tuulettuvan rakenteen myötä IP31, joka voidaan korottaa IP34 asti, asentamalla keskuksen päälle suojakaappi (soveltuva suojakaappi LKS1490 snro 3436871).Sähkölaitoksen mittausta varten mittausmalleissa (LKM ja LJKM) keskuksessa M2-mittaripaikka ja 0.2S-tarkkuusluokan virtamuuntajat, sekä yhdistelmäylijännitesuoja Hager SPA930 hälytyskoskettimilla. Keskukseen voidaan liittää sähkölaitoksen 63A liittymä, joka on teholiittymää halvempi. Myöhemmin tehontarpeen kasvaessa, liittymää voidaan kasvattaa 125A asti. Keskuksen osalta tämä onnistuu kompaktikatkaisijassa olevan DIP-kytkimen avulla (katkaisijatila sinetöitävissä). Latauskeskus Ahma LKM25612X ominaisuudet:Nimellisvirta 250A (valittavissa 160A / 200A / 250A)Lähdöt 12kpl MCN363E (Hager johdonsuojakatkaisija C-käyrä 63A, 3-nap.)Syötössä kompaktikatkaisija HNJ250DR aukiohjauskelalla (Hager H3+)Verkkoanalysaattori ModBus-tiedonsiirtoväylällä (Circutor CVM-C11)Syöttöliittimet HYW007H (Al/Cu 2x35-300mm²)Latauslähdöille Al/Cu-vaihtoliittimet 2,5-35mm².Lämpenemän hallintaSähköauton latauksessa keskuksen lähtökomponentit toimivat usein lähellä nimellisvirtaa, joten lämpenemän hallinta on keskuksen elinkaaren kannalta erittäin tärkeää.Keskuksessa huomioitu latauskuorman mukaiset lämpenemänhallinnan tarpeet:kenttäkohtainen tuuletuslatauslähdöissä ilmavälitlämpö-hätä-seis -toimintoLatauslähtöjen tasoituskerroin 1 (latauskeskusstandardin vaatimuksen mukaisesti). Latauskeskuksessa on DIN-kiskokohtainen anturointi, jolla on toteutettu valmius dynaamiseen lämpenemähallintaan. Liitettäessä keskus eParking-taustajärjestelmään, latauskeskus voi hallita latauskuormaa dynaamisesti lähtökomponenttien lämpenemän perusteella. ElinkaarihallintaKeskuksessa on varauksena laitetila kuormanhallinnan laitteille. Kuormanhallinnan tila on yleinen laitetila, johon voi asentaa mitä tahansa laitteita. Laitetilassa varaus eTolppa-järjestelmän kuormanhallintalaitteelle (eG) monitasoista kuormanhallintaa varten. Kun eTolppa-järjestelmän kuormanhallintalaite asennetaan keskukseen, ei tarvita erillistä yhteyslaitetta latausasemissa.Mikäli keskuksen elinkaaren aikana lämpö-hätä-seis -toiminto katkaisee sähkönsyöttöä toistuvasti, on hyvä harkita dynaamisen lämpenemänhallinnan käyttöönottoa. Toiminnossa taustajärjestelmä pystyy rajoittamaan latausasemien kuormaa portaattomasti lähtökomponenttien lämpenemän perusteella.Keskuksessa on varaus yliaaltosuodattimelle. Verkkoanalysaattorilla voidaan seurata harmonisten yliaaltojen kehittymistä, ja jälkikäteen on mahdollista helposti liittää keskukseen yliaaltosuodatin. Analysaattoriin on mahdollista lisätä hälytyksiä tähän liittyen.Keskuksessa on lisäksi erillinen tila varalähdöille. Varalähtötilassa on vakiona 3kpl C10 + 2kpl C16 (1-nap.) johdonsuojakatkaisijoita varalla (muita sähköistystarpeita varten). Varalähtöjä ei ole johdotettu riviliittimille.
- Tuotenumero 3510731
- Toimittajan tuotenumero: LKM25612X
- EAN koodi: 6438526002224
- Materiaaliluokka S3463B
Tekniset tiedot
- Pakkauskoot: 1 KPL/2 KPL
- Nimellisjännite: 400 V
- Nimellisvirta: 250 A
- Väri: harmaa
- RAL-numero: 1013
- Leveys: 1020 mm
- Korkeus: 1900 mm
- Syvyys: 245 mm
- Asennus: seinä
- Materiaali: teräs
- Pinnan suojaus: muu
- Kaapin IP-luokka: IP34
- Napojen lukumäärä: 3
- Haarajohtimen nimellispoikkipinta-ala: 2.5-35 mm²
- Pääjohtimen/syöttökaapelin nimellispoikkipinta-ala: 35-300 mm²
- Kiskon IP-luokka: IP00


