Feedback
Spacial S3D - teräksiset seinäkaapitYhdestä kappaleesta taitettu ja hitsattu runko, kourumaisen etuprofiilin paksuus kaksinkertainen. Sileä takapaneeli.Kotelointiluokka: Yksioviset mallit IP 66, kaksioviset mallit IP 55.Kevyt ja luja kaappi taitettua ristikkorakenteista teräslevyä.Ulkoisten mekaanisten iskujen kesto: Umpioviset mallit IK 10, lasioviset mallit IK 08.Ajansäästö: 54 mittaa sileällä alustalla tai ilman sitä, kustomoidut mallit, paljon varusteita... Paljon kokoja: 300x200x150 ... 1400x1000x300 (kxlxs). Valinnanvaraa: umpiovi tai lasiovi.Maalaus: harmaa RAL 7035.Sertifioinnit: EN 62208 (LCIE), UL, CUL, BV, DNV, LR, GL, ATEX (muunnettu kaappi).Schneider Electric on valikoinut joukon kaappien varaosia. Olipa kaappi valmistettu äskettäin tai vuosia sitten, siihen saa aina varaosia.Sovellukset:Teollisuuden automaatio ja ohjausErikoiskaappi EMC-suojauksella S3HF (10 kokoa).Erikoiskaappi terminaalisuojauksella S3DB (11 kokoa).Ja suuri valikoima varusteita: alusta, läpiviennit, johtotiet.Sähkön jakeluErikoiskaappi, Spacial S3DM (8 kokoa, syvyys 150 mm).Elektroniikka ja teollisuusverkotErikoiskaappi Spacial VDM (19 tuuman runko).
- Tuotenumero 3460590
- Toimittajan tuotenumero: NSYMM3025
- EAN koodi: 3606480183270
- Materiaaliluokka S3418B
Tekniset tiedot
- Pakkauskoot: 1 KPL/500 KPL
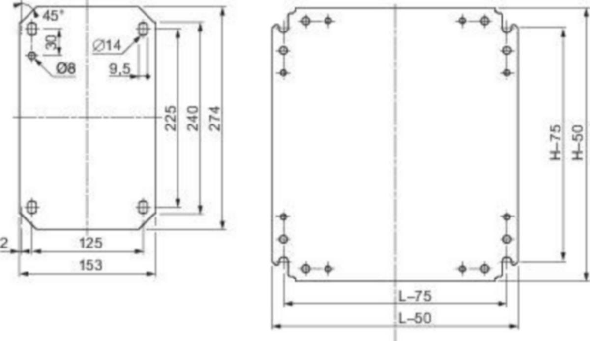
- Leveys: 250 mm
- Korkeus: 300 mm
- Materiaali: teräs
- Pinnan suojaus: sinkitty
- Perforoitu: ei
- Tuotesarja: Universal Enclosures


