Feedback



OBO Bettermann
Jatkokappale OBO KTS KTSMV
JATKOKAPPALE KTS KTSMV 610 FS, RUUVITON
Tuotenumero Toimittajan tuotenumero:
1465180
6068914
Nähdäksesi varastosaldon ja hinnan
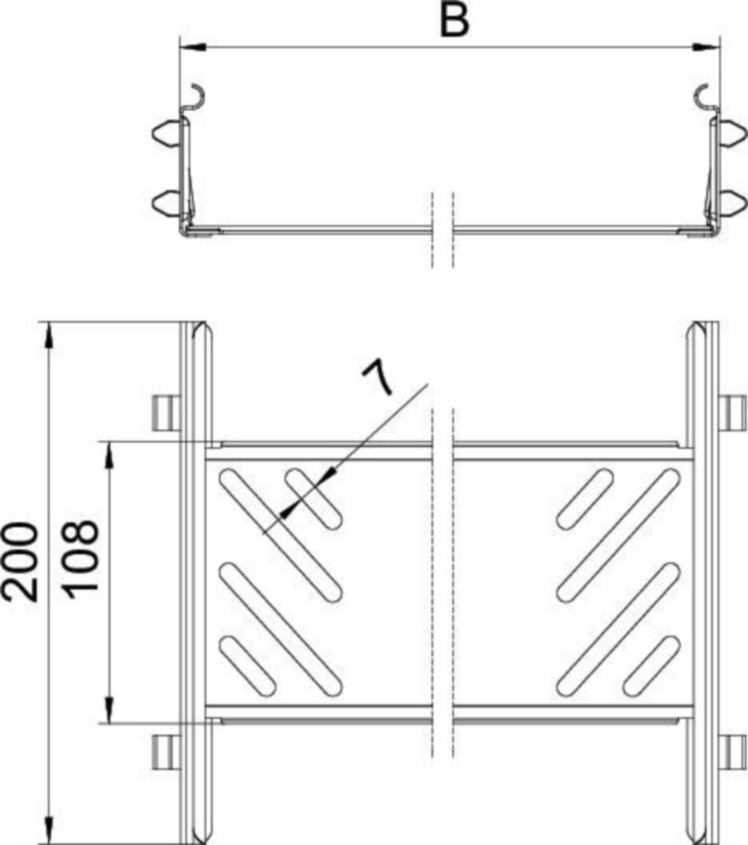
Jatkokappale levyhyllylle reunakorkeudella 60mm, ruuvitonMonipuoliset ja hyvin tuulettuvat OBOn levyhyllyt mahdollistavat optimaaliset kaapelien asennukset kaikilla sähköasennuksen alueilla, erityisesti palonkestävissä asennuksissa.. Asennusajat vähenevät moninkertaisesti RKS-Magic® levyhyllyjä käytettäessä.
- Tuotenumero 1465180
- Toimittajan tuotenumero: 6068914
- EAN koodi: 4012195889502
- Materiaaliluokka S1404B
Tekniset tiedot
- Pakkauskoot: 1 KPL/1500 KPL
- Pituus: 200 mm
- Malli / Tyyppi: pituussuuntainen jatko
- Soveltuu johtokanavaan: kyllä
- Pinnan suojaus: muu
- Materiaalin laatu: muu
- Materiaali: teräs
- Liitäntätapa: ruuviton liitos
- Soveltuvan kaapelitiejärjestelmän leveys: 100 mm