Feedback
Puhdistusyhde on avattava yhde, jonka avulla viemäritukkeuman voi poistaa. Puhdistusyhteen käyttöalue on BD, joten se voidaan asentaa rakennukseen, maahan, valuun tai tonttialueella rakennuksen alla. HT puhdistusyhteellä on Nordic Poly Mark- laatumerkki osoituksena korkeasta laadusta. Puhdistusputki on valmistettu polypropeeni (PP)-muovista, joka kestää hyvin kemikaaleja sekä pohjoismaisia vaihtelevia sääolosuhteita. Laadukkaan materiaalin ansiosta HT putkiyhteissä on korkea iskunkestävyys sekä korkeissa että matalissa lämpötiloissa.
- Tuotenumero 2470176
- Toimittajan tuotenumero: 70000540
- EAN koodi: 9010459141354
- Korvaa tuotenumero: 2470176A
- Materiaaliluokka P24010
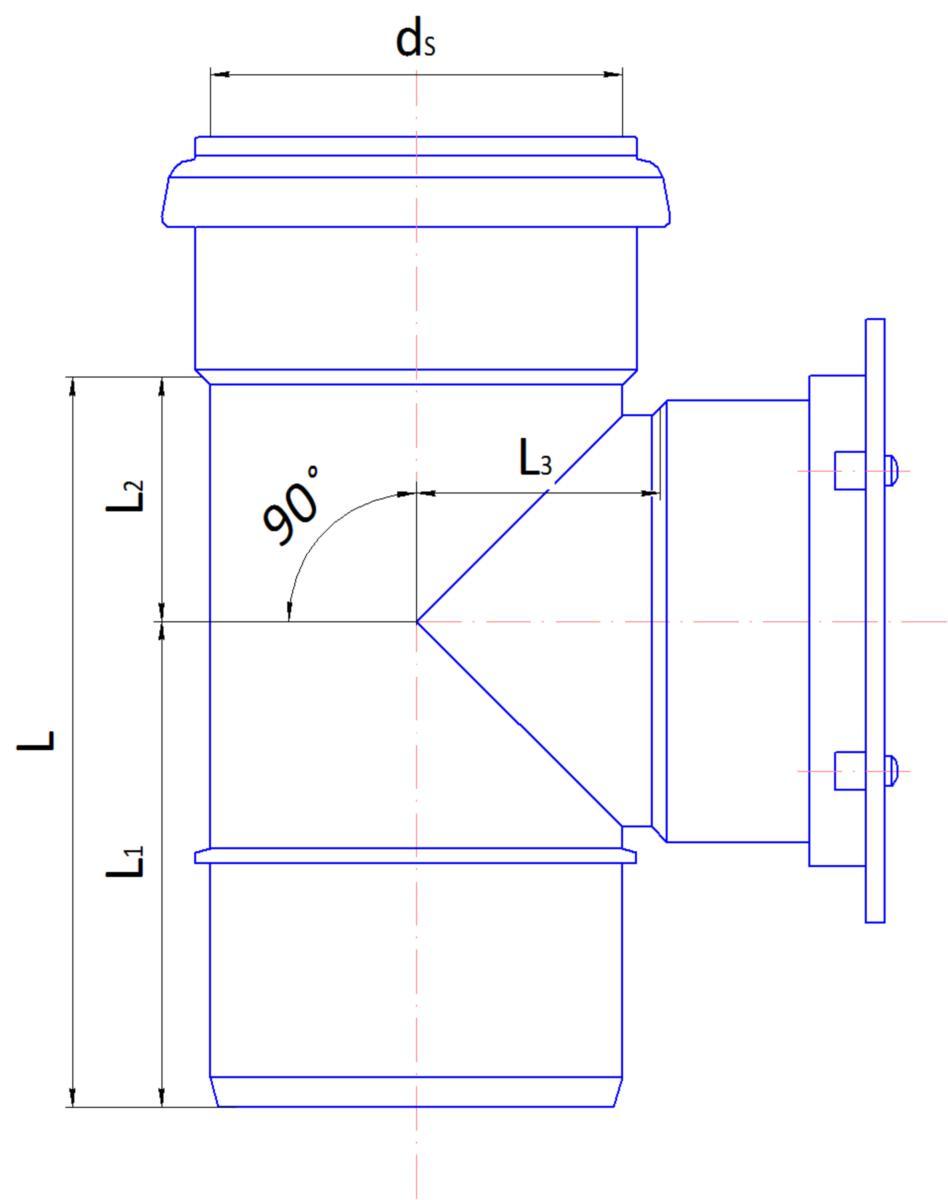
Tekniset tiedot
- Pakkauskoot: 1 KPL/18 KPL/120 KPL
- Putken ulkohalkaisija: 110.0 mm
- Liitäntä 1: Holkki tiivisteellä
- Liitäntä 2: muu
- Kannen asennus: muu
- Nimellishalkaisija: DN 110
- Kannen muoto: pyöreä
- GWP-tot (A1-A3): 0,7919 kgCO2e/KPL

